台北|老屋翻新

風格:現代工業風

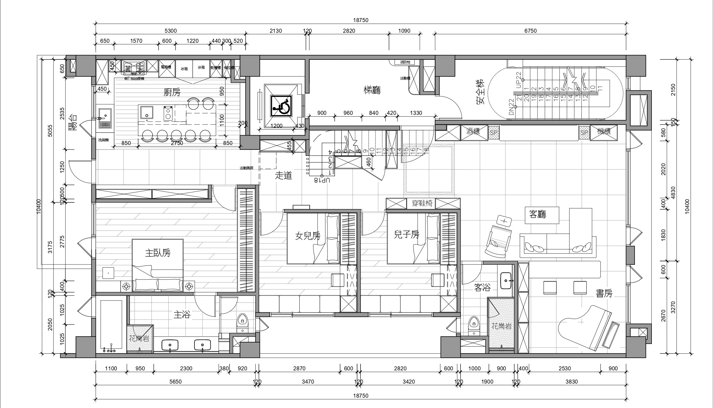
空間:2層樓

坪數:120坪

屋齡:自地自建

裝修重點 :

#自地自建

#材質運用

#收納設計

#照明規劃

Before After

詳細介紹 :

在設計上,我們強調開放感與通透性,利用大面積的窗戶和通道來引入自然光,讓整體空間感覺更加寬敞明亮。

尤其是客廳和餐廳區域,這些地方應該是家庭交流的核心,開放式設計能促進互動和家庭氛圍的營造。

二樓的設計則可以融入隱私感與舒適度,比如臥室與書房區域的分隔,可以使用簡單的玻璃隔斷或移動屏風,保留視覺連接的同時又不失私密性。

選擇暖色調的地板和牆面,搭配簡約現代的傢俱,打造一個溫馨、放鬆的居住環境。