新北 老屋翻新 34坪

風格:日系無印風

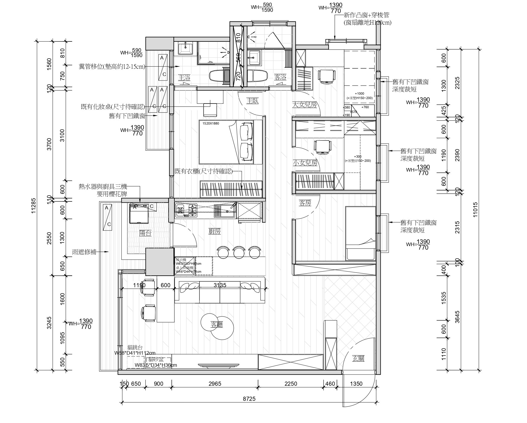
空間:4房2廳1衛

坪數:34

屋齡:35年 老屋翻新

裝修重點 :

#老屋翻新

#無印風

#格局改造

#照明規劃

Before After

詳細介紹 :

這間34坪的案件,結合了現代簡約與日系無印風格。整體空間寬敞明亮,搭配自然木質紋理與純粹中性色調,帶來一種舒適放鬆的氛圍。

 

無論是柔和的光線、簡潔的家具,還是貓跳台,每一個細節都透露出極簡與生活質感的完美融合。

 

客廳與餐廳的開放式設計讓家庭成員之間的交流更加無間,而兩間臥房則提供了充足的私密空間,是忙碌生活中最好的休憩角落。這樣的家,不僅是居住的地方,更是一個能讓心靈得到釋放、放鬆的舒適空間